Ehemaliges Wirtschaftsgebäude

der Universitätsklinik Halle

Neben dem ehemaligen Kesselhaus wird nun auch das ehemalige Wirtschaftsgebäude auf dem Gelände der Universitätsklinik und Polyklinik für Psychiatrie, Psychotherapie und Psychosomatik in der Julius-Kühn-Straße saniert.

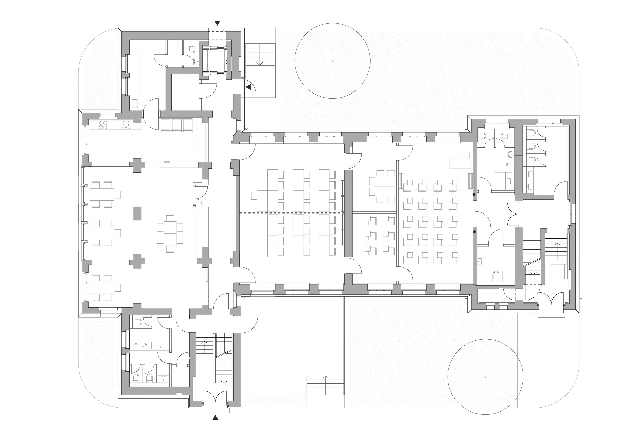
Ziel der Umbaumaßnahmen ist das Wiederherstellen der Gebäudekubatur nach den Plänen des Architekten Otto Kilburger von 1889-1891.

Die Sanierung dieses zentralen Gebäudes des Areals ist nicht nur zum Flächengewinn für ein Bistro für Klinikmitarbeitende sowie neue Räumlichkeiten für Seminare und Büroarbeit notwendig, sondern auch aus denkmalpflegerischer Sicht. Die bereits erfolgte Fassadensanierung des Westgiebels zeigt, welche Veränderungen auch mit kleinen Eingriffen möglich sind.

Im nächsten Schritt wird der Mittelbau in seine Ursprungsform zurückgebracht, dabei bekommt dieser einen neuen Dachstuhl und seine alte, im Laufe der Jahre verschlossene, Fensterfront. Weitere Umbaumaßnahmen haben auch die barrierefreie Erschließung durch einen Aufzug und die Schaffung neuer Sanitäranlagen zum Ziel. Die beiden Treppenhäuser werden über die komplette Baumaßnahme geschützt um den historischen Bodenbelag und das Geländer zu erhalten.

Adresse
Julius-Kühn-Straße 7
Halle (Saale)

Bauherr
Universitätsklinikum Halle (Saale) AöR

Freianlagenplanung
LandschaftsArchitektur WEND

BGF
ca. 1500 m²

Bauzeit
seit 2023

Fotos
M. Dreßler, R. Meyer

Baustelle ehemalige Küche

nächster Bauabschnitt - Mitte und Ost

Grundriss Planung

Aufgearbeitete Fassade historisches TH

Weiter
Weiter

Institutsgebäude Halle (Saale)